|
|
Home of the
Timpdon Miniature Railway
(5" Gauge Ride on Railway) |
|
A 'Blog' about Trying to Build a Railway
The never ending project to try and build a
ride on (5" gauge) ground level railway in a normal back garden
|
|
Click to enlarge any photo
 
|
Planning
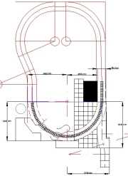
A really bad winter during late 2013 and early 2014 meant that nothing much could happen outside. I could brace the cold and wet for just about long enough to hold a tape measure. So my TurboCad skills were developed planning and plotting how to get a railway into a small area.
I should point out that the garden is only about 24’ wide and the bottom section has a patio a good three to four foot below the rest of it. The last 20 odd feet of the garden has an ex-double garage which I converted into a dry-lined workshop. The front was bricked up and false windows added, reproduction enamel signs added and a station canopy. A narrow platform in front of sleepers in gravel finished the look. All very nice – but less room for a working railway.
Fortunately I like narrow gauge, famous for tight radius. I also prefer little Huddy Hunslet type diesels. Visitors with an A4 Mallard would have to find somewhere else to run.
In the end there was very little choice. A 10 foot radius oval, with a short bit of straight track either side was the only sensible option.
This wouldn’t mean it was going to be boring!
Remembering lessons learnt in model railway design for layouts in small spaces, it had to be interesting. The requirements / desirables were therefore:-
• Not all the track visible (ideally the train will pop in & out of view)
• A minimal bridge over a pond
• Level crossing / crossing through a patio
• A squeeze behind a shed
• Go through a hole in a trellis or hedge
• A station to arrive at.
Mmmm! Tall order for a roundabout railway!
After a long time spent researching other railways on the internet (to take from one source is ‘plagiarism’; to take from two is ‘research’) I established some basic dimensions. Clearance in width (I’m not worried about height – yet) is 800mm. This means the inner clearance radius is 2,648mm, whilst the outer clearance radius is 3,448mm.
So a plan was drawn up. Well this was the theory. Hopefully it’ll work.
|
|
|
March 2014
I had quite a few days holiday to take before the 1 April and with one eye on the weather I chose the week beginning on the 10th. Apparently it was the first time it hadn’t rained for two consecutive days for over 3 months! Good choice! It didn’t rain all week.
First job was to build new steps and also move the signal box (son’s old playhouse shed).
|
|

 
|
- The Steps
The existing steps up onto the lawn area and path to the workshop were ‘recessed’ into the patio wall. Unfortunately this recess was just where the new railway had to go. So… steal a bit from the lower patio and build some steps up.
I should explain at this point that I am famous for under estimating the amount of work required to achieve a task; the amount of time required; and the amount of materials required. Personally, I see it as a strength. You see, if I knew how much effort and time was really required to do some of things I’ve done, I’d never have started them. As it is, I struggle on blissfully unaware of what I’ve let myself in for.
So just “rebuilding the steps and filling in the gap of the old one” sounded a few hours work to me in my wide eyed Bambi innocence. Ha! 12 paving slabs pater; about 50 concrete walling bricks; about 15 bags of sand and 5 bags of cement; 3 tonnes of MOT (hard-core building rubble to normal people like me), a few more mixes for the concrete foundations and about seven days back breaking work later…. we had new steps with a level area above. Big thanks are due here to Neighbour Nick who helped shovel and wheelbarrow all the stuff from off the drive into location.
Fortune had smiled on me in one other lucky way. A neighbour was going to be laid up with a new hip for several months. Okay that’s not very lucky for him, but he owned a cement mixer. This of course meant that it was free for me to look after it for several weeks.
I also found out that things have changed over time. A bag of sand (and a bag of cement for that matter) weigh an awful lot more than they did 30 years ago. I could easily pick them up all day back then – but not now. I blame metrication. Kilograms must be heavier than pounds.
|
|
 
|
- The Signal Box
“All we have to do is move the signal box back four foot and away from the hedge by about two foot!” (Example II of my project management ‘strength’). How do you move a solid wooden building to one side whilst you lay three concrete fence posts into cement, and then lift it up and plonk it on top? The answer was ladders. Slide it onto a ladder and push sideways. Push onto another ladder which is seesawing over a pile of bricks and push. Easy! (ish).
So far I’d gone through a box a Radox and lost several pounds (in weight – quite a few more in pounds sterling) and we still hadn’t seen anything remotely resembling a railway.
I was also in danger of losing neighbours. Neighbour Graham was a constant visitor who, unlike me, isn’t afraid of hard work. He seems to actually enjoy it! A strange concept that I don’t understand – but one I’m more than willing to exploit. Surprisingly he is also brilliant at motivating me. Instead of letting me pretend to be weighing things up and planning the area, he thrusts a shovel in my hands and makes me actually do something. It’s what I need if I’m to be honest.
|
|
 
|
- The Slabs
The area on top of the steps, in front of the signal box, had to be paved. The idea was to have a quarter circle section 800 mm wide cutting through it, in which the track would be ballasted.
Progress to date is that we've just finished laying all the slabs, including the ones that needed cutting (which were cut by Neighbour John who brought his big disc cutting grinding thing round whilst I was at work trying to earn more money to throw away on the garden).
It looks moe like a river bed than a railway at the moment, but like British Rail - we're getting there.
|
|
 
|
- The Bridge
Mmmm. The Bridge. I was reluctant to write about this until I knew whether it worked. Well if it fails I will hopefully have obtained some sympathy from somewhere out there.
How on earth do you measure for something that hasn’t been made, between two points that haven’t been built? I’m sure Telford didn’t have this problem.
In the end, we got (I say ‘we’ because Neighbour Graham was helping me out at every free moment he had) (I love Graham) two long pieces of wood and screwed them together. A hole was drilled in one end and placed over a bit of metal wardrobe rail hammered into the ground. We now had a 10 foot radius compass. Move over Brunel!
All it took was three visits to the metal welding people (the last railway arch on Viaduct Street in Altrincham – great for gates, railings, grilles and now railway bridges).
I’d decided to go for a minimal look to the bridge. If I’d gone for bridge sides, then the narrow span would’ve meant that you wouldn’t know you were going over a bridge. I wanted to give a feeling of seeing your feet over the water. Okay, it’s not Alton Towers, but it’d make it a bit more interesting.
Two parallel pieces of 40mm tube section form the main support. A few design changes later has meant that there are three sections of this, two of which are ‘bridges’.
When the track arrives, we’ll see if it works and does its job. In the mean time I’ve going to hammerite the thing in innocent confidence.
|
|
 
|
End of March 2014
Unfortunately not a lot has been happening for the last few weeks. It was chucking it down all weekend, then it was Mothering Sunday when I wasn’t allowed to touch the railway. Things have also slowed because of my damaged cartilage flaring up again. I just suffer in silence… I don’t moan…. (I just “raise the level of awareness”).
So, whilst waiting for the track to arrive, thoughts turned to the top end of the garden, in front of the station workshop. Despite spending hours pontificating over plans and measurements, this trellis was in the way of the railway. Well, to be exact the trellis wasn’t, it was the tree trunk size base of the ivy which climbed over the trellis. On one free day the trellis was pulled down and the ivy with it. This turned out to take a full day’s work, involving several trailer loads taken to the tip.
It’s intended that the railway will run through a hole in a trellis fence. So as soon as the track is down, a new trellis will be put up in a more sensible position and another ivy will be planted.
Neighbour Graham has been brilliant again with his spade and shovel. Apart from helping with the trellis and the associated concreted in posts, he dug out two conifers that were slap bang in the path of the track-bed.
So at the moment the garden is looking ten times worse. Let’s just hope this weekend we can get the track-bed in, including the two lines of brick either side of the track-bed to help retain the ballast. I’ll have to ignore the cartilage pain… I just don’t mention it…
|
|
 
|
Beginning of April 2014
Out of three days free, it only stayed dry for one. Well dry-ish.
On this day we (Neighbour Nick this time) managed to cut the real railway sleepers which were put down years ago in front of the workshop station. The 10’ compass was deployed to mark out where they had to be cut, then much sweat and groaning made them the correct length.
The foundations were dug out for two rows of driveway blocks which will hold in the track-bed ballast. As soon as it stops raining and these new man made canals dry out, the bricks will be concreted in place.
It’s the National Garden Railway Show in Peterborough next weekend and I’m taking the 16mm layout and we’ve got a trade stand. I’m just getting this excuse in early as it looks like the garden will have to be ignored for two weeks.
People are reminding me that they’ve now completely rebuilt the main line at Dawlish in the time I’ve being doing this miniature line. What the critics forget is that there’s a massive team working on that railway and it cost about £50 million. Oh! And they knew what they were doing….
|
|
 
|
27 April 2014
A family holiday got in the way of recent progress, but today I managed to lay a few driveway blocks. This was behind the signal box and in front of the station workshop.
It's amazing how much concrete you go through. Two full mixes (One mix = 4 ballast and 1 cement) just disappeared when the blocks were going down. So progress has stopped again until Wickes opens tomorrow evening. I'll just have to sit and watch telly with a glass of red... What a shame!
Oh! Nearly forgot to mention it! At the National Garden Railway Show the 16mm Layout was awarded Best Layout! Wow! Can't believe it as there were some superb models there. Thank you to all who voted.
I also got to meet my heroes at Ride on Railways. Had a good talk and learnt a bit more. Mind you, without him realising it he motivated me into action. When I mentioned this web site he said that many people started off like this with good intentions - but very few carried it on, losing interest on the way. Well I'm not going to! Just watch this space!
|
|
 
|
May Bank Holiday 2014
Ow! I hurt. I ache. I’m in pain. I feel like I spent the weekend in the gym or a boot camp. In fact pushing against all those weights and going up a never ending staircase couldn’t possibly be as strenuous as mixing cement and concrete all day and moving rubble around a garden. There’s a thought… Railway-Aerobics. It could be the new craze. I’d advertise for all these healthy young leotard clad females and steroid muscle-men to come and ‘exercise’ in my garden whilst I have a loudhailer, barking instructions on what to do next. And they would pay me to get fit! Brilliant! All I’d need is mirrors down one side of the garden. They only flaw in this master plan is that despite all this physical exercise, I’m still chubby. Rats!
So it’s all been happening in Timpdon this last weekend! Where do I start?
|
|
 
|
The proposed trackbed has now been fully edged, mainly with a line of driveway blocks. The trackbed was then half filled with hardcore, so all that’s needed is to now put down the weed barrier sheet and then start shovelling in the 10mm limestone (2 ton of which is currently sat at the entrance to my driveway). [I made that sound ever so simple, didn’t I !].
There were problems to laying the blocks though. So that these ballast retaining blocks cleared the old concrete foundation of the 16mm railway, I raised the proposed 5” trackbed by about 2”. I never thought about the retaining wall made out of slabs concreted in on edge. They are now 2” short. (D’oh!). The only solution was to mortar blocks to the top edge of them. But how do you do this on the edge of a paving slab? The answer was to build an inner wall out of broken slabs and bung the blocks on top of that. Simples! (but that took another day).
Still with me? We also put a new trellis up. It stands out a bit too much at the moment due to its bright golden colour, but I’ve supplied the rest of the family with two tins of green cuprinol. I now just need them to do as they’re told.
The trellis will need an arch cutting into it where the railway passes through it alongside the fence. I’ve decided to do this when the track’s down and I can draw around a passenger’s head.
Cotswold stone has been paced outside the trackbed in front of the station workshop. They look a bit too white at the moment, resembling a plot in the local Crem – but I’m sure they’ll weather down a bit.
The pond liner’s also in. The hole was cleared of all the debris that had accumulated over time and then lined in carpet. A 21’ x 12’ sheet of rubber was purchased (a mortgage was needed) and currently is now in place collecting the rain.
I’d made concrete bridge supports at either end, so all that’s need is to drill the metal bridge and concrete supports and then screw in position! There I am again, hoping it’ll be that simple - but somehow I doubt it.
I think that’s a summary of where we’re up to at Timpdon. After a few hours tidying up, it’s beginning to look a bit better and not so much a WW1 trench railway (without the track).
I haven’t mentioned neighbour Graham, have I? He’s been over every day and worked harder than me (he doesn’t bother reading this, so I can admit it). When I felt like sliding off and “having a think” (mainly in a comfy chair with my eyes shut) he’s been there making me carry on and work harder. When my knee was aching, it was him who wouldn’t let me rest, but made me work through the pain. Come to think of it, I bl00dy hate him.
As the end is in sight (or at least the track laying part is getting nearer) I’m now a bit more enthused by the project and the manual labour hasn’t quite put me off (yet). However as I sit here typing with my cement burnt finger, I can’t help wondering why I didn’t stick with Triang Hornby.
Where’s the radox?
|
|
 
|
One week on...
Rain! Never ending rain! Bob Geldof should employ me to build a miniature railway in Ethiopia. They’d have floods within a week.
Despite the bad weather, we still managed to get a little something done between torrential downpours. The big grey stones were moved around two sides of the pond to hide the pond liner. The big white(ish) boulders, which had rooted nicely in the middle of the lawn, were moved to the trackside.
The best bit was fixing the bridge in its final position. I love it! Okay it still needs a central brick pillar building in the pond, but it can already support my weight.
We still can’t place the new track though, due to the mortar needed at the bridge ends (without it the ballast would simply fall in the pond). So here’s waiting for a dry day!
Whilst my knee recovers from the operation there will be a short interlude.
|
|
 
|
End of May 2014
Well my knees getting much better (thanks for asking), so we managed to get a little few jobs done.
The biggie was putting over a ton of 10mm limestone ballast down on the trackbed. I’ll remind you that there’s no vehicle access to our back garden, so teenage son had to be bribed to help carry buckets of the stuff. Try to imagine Harry Enfield’s Kevin being forced to do manual labour, and you’ll get the picture of what it was like. Apparently building a miniature railway isn’t ‘cool’, or ‘sick’, or ‘pants’ – or something else (I wasn’t listening). Anyway, it looks relatively level now and the rest well be put down when the track is laid.
What else? Well before I do the fun bit of track laying, I disciplined myself to do some boring jobs. Things like painting the trellis. Why on earth I didn’t spray it before screwing it in place I’ll never know. But five hours with a paint brush is great therapy.
I also jet-washed the old patio wall. Despite what it said on the stain remover bottle, the odd black mold marks remain. However you can now tell that the concrete walling blocks should be yellow and so don’t look that bad.
The grand tidy up also took some time. A skip would’ve been easier but also a lot of expense. Numerous trips to the tip might be time consuming, but it’s a hell of a lot cheaper.
It’s forecast rain for the next few evenings, so track laying might not start for another week. Let’s see how it goes.
As this is such a pinnacle stage, I think it’s about time I started a new web page. So as soon as I have something more to say, it’ll be on a fresh new page.
|
|
www.timpdon.co.uk
|